3321 W Kennewick Ave #105, Kennewick, WA 99336
3321 W Kennewick Ave #105, Kennewick, WA 99336
Retail on Kennewick Avenue
Exceptional opportunity to lease retail space in a well-established, high-performing center with a strong mix of professional services, restaurants, and complementary uses. Ideally located west of Highway 395, Kennewick Square sits in a prime retail corridor near major big-box retailers, financial institutions, and popular local shops.
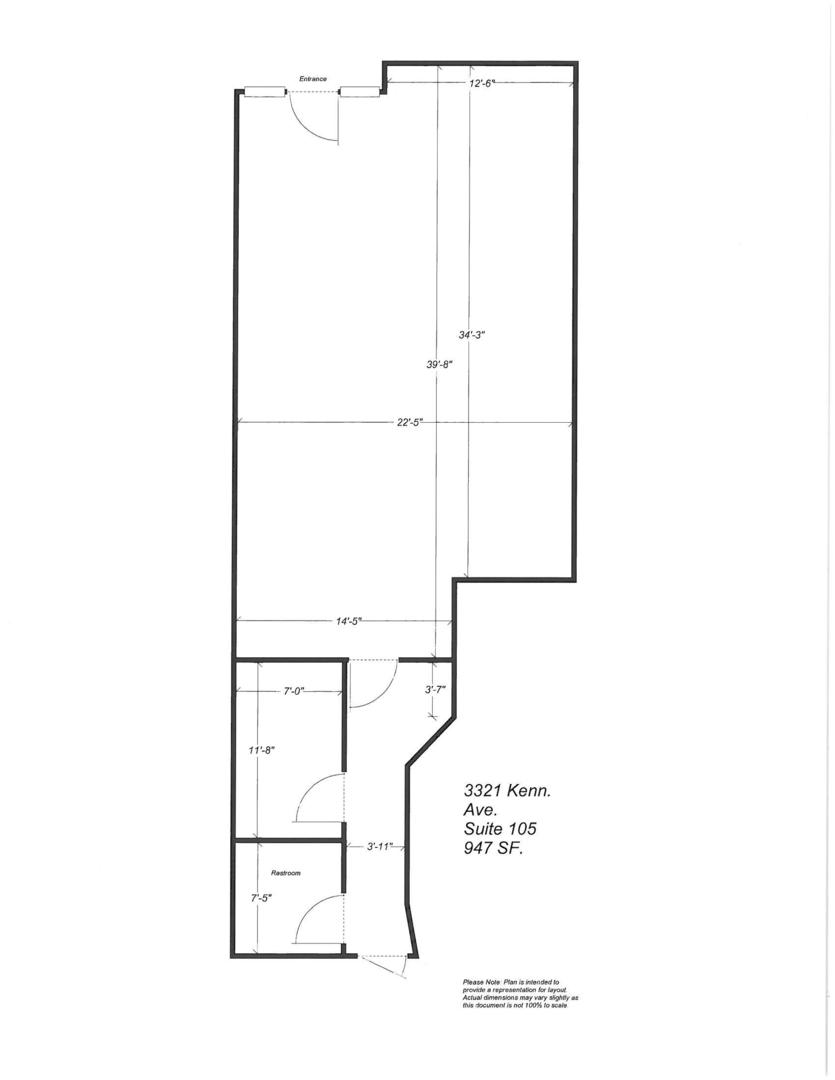
Suite 105 has an open layout with a private office. Please see the attached floor plan for clarification.
- 947 sf
- $17.08/sf
Space is currently occupied, do not disturb tenant. Please contact Crown for scheduling showings.
Suite 105 has an open layout with a private office. Please see the attached floor plan for clarification.
- 947 sf
- $17.08/sf
Space is currently occupied, do not disturb tenant. Please contact Crown for scheduling showings.
Contact us:

















